Faster | Smarter | Stronger | Customizable | Efficient | Built For The Future
Faster | Smarter | Stronger | Customizable | Efficient | Built For The Future

We start with a comprehensive 3D model, seamlessly integrating CFS framing, backing, and MEP systems, all tailored to the specific needs of each project. Our design-driven approach ensures precision, efficiency, and adaptability, reducing on-site labor while enhancing structural integrity. By leveraging advanced digital modeling and prefabrication techniques, we streamline the construction process, delivering high-quality, ready-to-install solutions that optimize speed, cost, and sustainability.



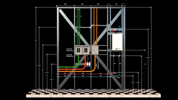
Our Integrated Load Center Wall is a pre-engineered, factory-built solution designed to streamline electrical and utility installations in modern construction. This precision-manufactured assembly seamlessly integrates essential components such as the electrical board (220V), meter, data connections, and water heater, ensuring efficient space utilization and simplified on-site installation. Templates are available or new custom designs can be easily generated to meet your specific project requirements.

Our Kitchen Wall Component is a fully integrated, factory-built solution designed to optimize efficiency, streamline installations, and enhance flexibility in residential and commercial kitchens. Engineered for seamless plug-and-play integration, this system incorporates pre-routed plumbing, electrical, and ventilation infrastructure, reducing on-site labor and accelerating project timelines. Templates are available or new custom designs can be easily generated to meet your specific project requirements.

Our Pre-Engineered Bathroom Wall System is a factory-built, fully integrated solution designed to optimize efficiency and simplify installation in residential, multifamily, and commercial projects. By incorporating pre-installed plumbing, venting, and electrical infrastructure, this system eliminates on-site complexity, reducing construction time and labor costs. Templates are available or new custom designs can be easily generated to meet your specific project requirements.







All Keyponents assemblies are designed to meet all mechanical, electrical, and plumbing code requirements, ensuring safety, performance, and long-term durability.
Copyright © 2025 Keyponents Inc - All Rights Reserved.